製品情報▶

巻付チャック

型式

φ2mm

最大荷重

最大線径

巻胴径

上部重さ

GC-41

50N

φ0.5mm

φ16mm

27g

GC-42A

500N

φ30mm

580g

GC-42B

2kN

GC-45

5kN

φ8mm

φ40mm

3kg

GC-47

10kN

GC-41

GC-42B

GC-45/GC-47

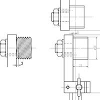
●糸・電線・ロープなどの線材の引張用治具です。

●試料のチャック切れを防ぐように、円筒に巻いた摩擦力で力を受ける構造です。 

下記のサムネールをクリックすると治具の図面をダウンロードできます。

GC-41 : 34KB

GC-42A : 37KB

GC-42B : 60KB

GC-45 : 46KB

GT-47 : 46KB

株式会社今田製作所   〒441-8058 愛知県豊橋市柱六番町91-1番地

Copyright(C) 2022 IMADA-SS Corporation. ALL Right Reserved